Casa de madera en oferta: VESPELLA
Casa de madera en oferta Vespella 99.5m2 sistema nórdico
Aprovecha esta oferta para construir una casa de 3 habitaciones al mejor precio, este modelo es ideal para las familias con 1-3 niños o las parejas que necesitan habitaciones extra para oficinas en casa, vestidor, etc.
Dispone de cuatro amplias habitaciones que gozan de luminosidad gracias a su distribución totalmente exterior.
Además, cuenta con un baño completo de buenas dimensiones y la cocina es abierta al salón comedorpara ofrecer aún más sensación de amplitud en la vivienda.
Sistemas de construcción:
Sistema nórdico con doble pared. Cubierta con aislamientos acabada con teja de cerámica mixta. Suelo acabado en parquet laminado. Ventanas de doble acristalamiento. Exterior sin mantenimiento de corcho proyectado. Interior acabado en barniz satinado.
Para más información, solicite ficha técnica del proyecto o una oferta personalizada.
Oferta especial casa de madera Vespella
La oferta incluye: materiales, transporte, montaje, suelo en parquet laminado, ventana con doble acristalamiento, cubierta con aislamiento y acabado con teja de cerámica mixta, Acabado exterior ( sin mantenimiento ) corcho proyectado, interior barniz satinado.
NO incluido en la oferta:
- cimentación, instalaciones de baño ni de cocina, ni sanitarios.
Precio 85 000 € (iva no incluido)
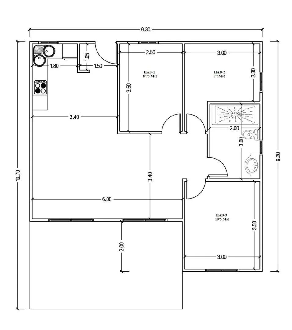
Planos de la casa de madera sistema nórdico Vespella
Toca los planos para ver la imagen completa. La oferta de casa de madera con sistema nórdico es para los planos presentados. Si quieres un plano personalizado, contacta con nosotros y personaliza tu casa de madera a medida.
Solicita información sobre casa de madera VESPELLA
¡Contacta con nosotros para aprovechar esta oferta increíble!
Ventajas de la oferta casa de madera VESPELLA
Ejecutamos las casas de madera con sistema nórdico VESPELLA en muy poco tiempo. Gracias a la rapidez de ejecución de estas construcciones, podemos reducir los costes muy significativamente, nuestros tiempos de montaje puede oscilar entre los 45 – 60 días.
La calidad de nuestras materias, junto con el control automatizado del nivel de secado y el mejor procesamiento de la madera, nos permite ofrecer un producto de máxima calidad para nuestros clientes.
Tratamos cada proyecto de casa de madera con la máxima profesionalidad. Contacta con nosotros para aclarar cualquier duda sobre las casas de madera en oferta en Tarragona y Cataluña.
¿Para quién es?
Esta casa de madera es ideal para parejas o familias con 1-2 hijos.
El concepto abierto del salón – comedor – cocina hace esta casa de madera ideal para los que aman la sensación de amplitud y espacio sin gastar un presupuesto desorbitante en demasiados metros cuadrados…
Otras casas de madera
Descubre más modelos de casas de madera en Cataluña
Contamos con muchos modelos de casas de madera nórdicas y de entramado ligero en Tarragona, Gerona, Lérida y Barcelona. También puedes encontrar variedad de oportunidades interesantes en nuestra sección de ofertas.

